Mon, Tue, Thu, Fri – 9:30am – 4:30pm; Wed – 9:30am – 1pm 150 Lord Street, Fleetwood, Lancs, FY7 6LH 01253 982110

Pharos Street, Fleetwood
£180,000 - House - End Terrace

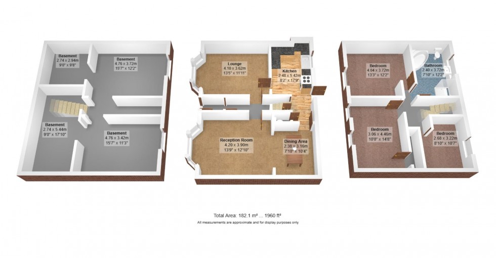
Floorplan for Pharos Street, Fleetwood
EPC Graph for Pharos Street, Fleetwood

Front Of Property

Access from main road into the porch and inner hallway.

Inner Hallway

Access from here into the lounge and reception room and the staircase leading to the upper level rooms. The hallway benefits from central heating and vinyl flooring throughout.

Reception Room

Great size room which benefits from gas central heating and a large double glazed bay window overlooking the front of the property. The room is open plan with the dining area making this room multi purpose.

Dining Area

Open plan with the reception room this area will house a good size dining table and benefits from gas central heating and a double glazed window to the side of the property.

Lounge

Good sized room with laminated flooring and a double glazed bay window overlooking the front. The room has a wood burning fire and surround and you have access into the kitchen.

Kitchen

Modern kitchen with a range of wall and base units along with plenty of worktop space. The kitchen comes with tiled flooring and has space for a freestanding cooker and space for a fridge freezer. The kitchen has a double glazed window over looking the rear garden with access door's to the garden and the basement.

W/C

Toilet and wash hand basin

Bedroom One

Large master bedroom with dual aspect double glazed windows making this room bright with natural light and is heated through gas central heating. This room comes with a storage room/ walk in wardrobe and there is plenty of space for more storage.

Bedroom Two

Good size double bedroom with the benefit of built in storage space. The room is light due to large double glazed window and is heated through gas central heating.

Bedroom Three

Double bedroom with gas central heating and double glazed window to the rear.

Bathroom

Great sized four piece bathroom suite which comprises of a corner jacuzzi bath, walk in shower cubicle, a low flush WC and mixer tap wash hand basin. The bathroom is partly tiled and has a large opaque double glazed window and gas central heating.

Basement

Great storage rooms currently with the benefit of power and lighting.

Rear Garden

A tranquil rear garden which is mainly concrete but has raised beds for shrubbery. The garden also has access to the garage and benefits from outside power and water.

Garage

Large garage which is a great space for a workshop or storage. The garage has power and lighting and a large up and over shutter door.

Share:
  • Substantial Three Bedroom House
  • Two Reception Rooms With Dining Area
  • Modern Kitchen And Downstairs WC
  • Three Double Bedrooms
  • Four Piece Bathroom With Jacuzzi Bath
  • Basement With Multiple Options For Use
  • Double Glazing & Gas Central Heating
  • Great Location For Transport And Amenities
  • Viewings Are Advised To Appreciate the Property Fully
  • Garage for Plenty of Storage

For further details on this property, please give us a call on

01253 982110

REQUEST VIEWING

Request a viewing

* Mandatory

Zoopla
On the market